PŘIPRAVUJI TISK
PŘIPRAVUJI PDF KE STAŽENÍ
Hlavní strana
Vize rozvoje
Revitalizace aleje
Studie veřejných prostranství okolí panelových domů
Úvod
Zadání
Analytická část
A_Urbanisticko-architektonické analýzy
A.2_Historické snímky a mapy
A.3_Širší vztahy a popis území
A.4_Silné a slabé stránky
A.5_Přiležitosti
A.6_Doprava a pěší pohyb
A.7_Výměniková stanice
A.8_Inspirace a příklady
B_Participace s obyvateli
B.2_Kulaté stoly s obyvateli
C_Analýza vegetace
C.1_Současný stav
C.2_Strategie managementu zeleně
D_Shrnutí analýz
E_Koncept prostoru Pastviny
Návrh
Situace
Prvky návrhu
Zeleň
Místa
Skice Vitorázská
Pastviny
Fasády bytových domů
Koncept návrhu
Participace s veřejností
A_Souhrn
B.1_Prostor Pastviny
B.2_Prostor sídliště
Revitalizace sportovního areálu
Smuteční síň a úpravy hřbitova
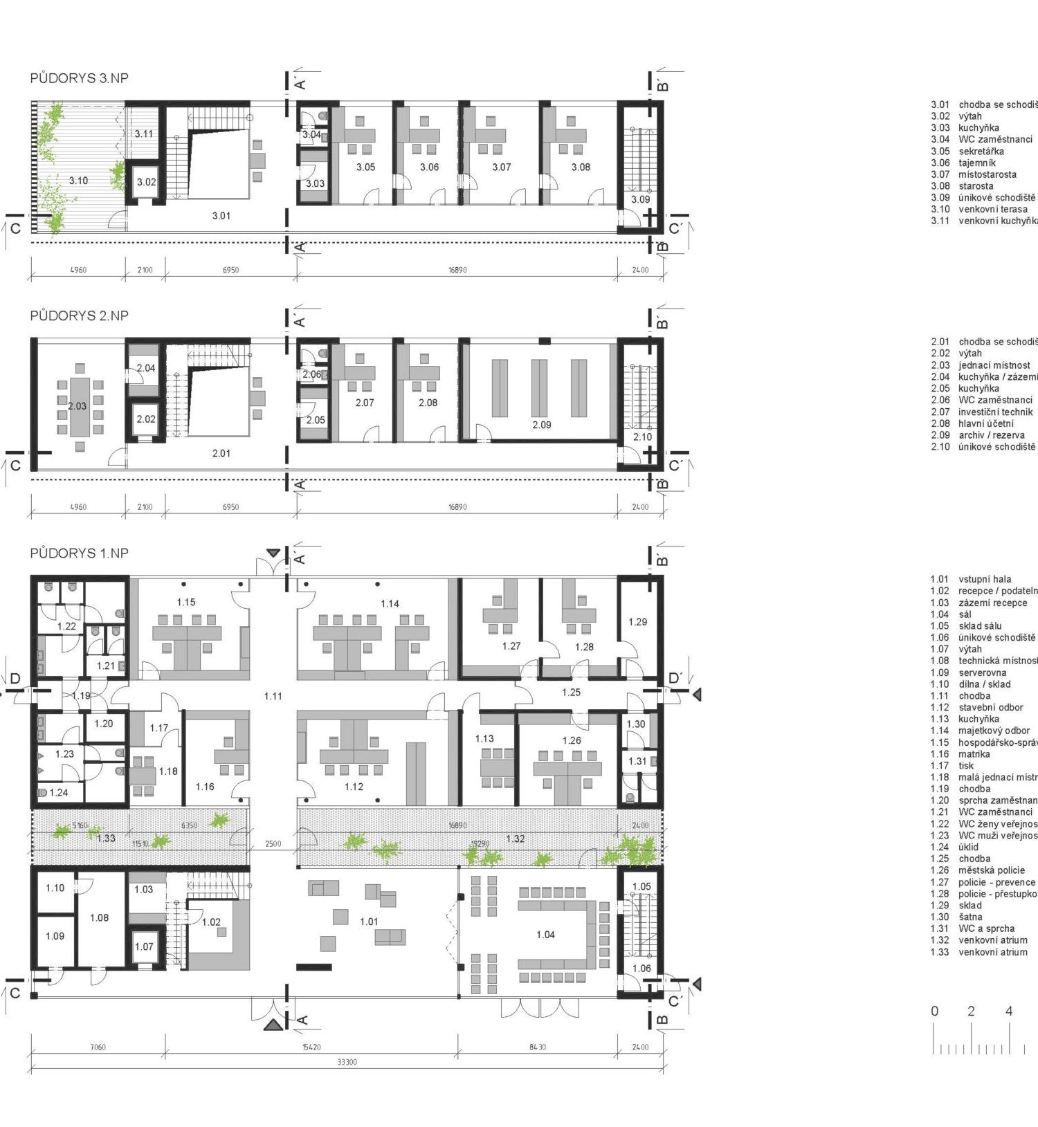
Studie městského úřadu
Studie přístavby školky
Revitalizace sportovního hřiště
Park moderních sportů
Park moderních sportů – Protihluková opatření a úprava navážky
Úvod
Schema problémů
Variant 1
Variant 1 - rozdílová hluková mapa
Variant 2
Variant 2 - rozdílová hluková mapa
Inspirace pro tribunu
Koncepční studie vycházkového okruhu za Besedou
Mapování, koncepce trasy
Stávající stav
SWOT analýza
Koncepce prostoru kolem Besedy a Vycházkový okruh
Vycházkový okruh za Besedou
Veřejné projednání
Veřejné prostranství Vitorazská
Zadání
Stávající stav
Koncepce
Návrh
Inspirace
Schéma etapizace
Veřejné projednání
Analyzujeme
Navigace
České Velenice
City upgrade
Studie městského úřadu
Obsah
100%
+
-
100%
+
-
100%
+
-
100%
+
-
100%
+
-
100%
+
-
100%
+
-
100%
+
-
100%
+
-
100%
+
-
100%
+
-
100%
+
-
100%
+
-
100%
+
-
100%
+
-
100%
+
-
100%
+
-
100%
+
-
100%
+
-
100%
+
-
100%
+
-
100%
+
-
100%
+
-
100%
+
-
Studie městského úřadu
On-line verze:
https://velenice.cityupgrade.cz
City Upgrade